鄭州杰凱專業(yè)的螺旋提升機制造商,該垂直螺旋提升機主要適用于粉末類物料的輸送,整機設計合理,占地面積小,運行平穩(wěn),故障率低,可根據用戶要求量身定制,可加裝自動化控制系統(tǒng),實現送料過程的無人化。

粉體立式垂直螺旋提升機是工農業(yè)各部門機械化運輸工作的主要設備,能大大減輕勞動強度,提高工作效率,具有廣泛的應用領域。廣泛用于建材.化工.電力.冶金.煤炭.糧食等工業(yè),粉體立式垂直螺旋上料機用于輸送粉末及顆粒及塊狀、顆粒狀及塊狀物料,如煤灰、渣、水泥、谷物等,物料溫度在200℃以下。
粉體立式垂直螺旋提升機特點
1。適用于糧食及飼料工業(yè)中的各種粉粒及顆粒物料,中間產品及成品的輸送;
2.結構緊湊,占地面積小;
3。結構簡單,工作可靠,操作簡便,成本較低;
4??稍谳斔瓦^程中完成混合攪拌或冷卻等其他工藝。
粉體立式垂直螺旋提升機的優(yōu)點:
1。上料機是利用螺旋旋轉將物料向前擠壓,同時使物料向前推進。
2.上料采用螺旋強制運動,因此,螺旋上料器不受物料比重及物料流動的影響。
3.上料能垂直上料,能將物料送到較高的地方,同時減少輸送行程。
送料技術參數:
1.輸送高度:(根據客戶要求定制)
2、電源電壓(如:AC380V50HZ.1.5KW
3.整機重量:80Kg
4.輸送量:3m3/h
5.料倉容量:100L。
機械重(kg)80150200300。
5.本機采用盤形鋼帶整體聯接刀片,螺旋面精度高,內孔外徑螺旋距尺寸準確,輸送條件好。
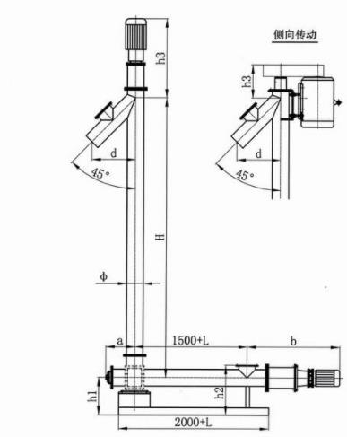
粉體立式垂直螺旋提升機的結構及說明:
1。本機為非基礎固定式,由傳動電機.減速箱.殼管.螺旋體按順序連接,合為一體。
2.軸端和螺旋體用漸開線花鍵聯接,裝拆方便,承載力大,安全可靠。
3.輸送機殼體是由鋼管通過法蘭連接的各個部件組成的整體,剛性好,可任意選擇工作位置及工作姿態(tài),并可任意拆卸和移動。
4.進料口可根據施工現場條件制作所需傾角,并與其他配套設備連接固定。
5.本機采用盤形鋼帶連軋一體刀片,螺旋面精度高,內孔外徑螺旋距尺寸準確,輸送工況好。
垂直螺旋提升機是一種占地面積小,輸送粉體物料的設備,可根據用戶現場物料輸送要求來個性化定制,歡迎新老客戶咨詢!




客服1